MSE
Anchored Walls
Anchored wall systems deliver earth retention where space is limited and performance can't be compromised.
The Anchored wall solutions are designed to provide exceptional stability in challenging soil and load conditions, while minimizing the footprint required for installation. Built to perform under pressure, these systems offer long-term reliability and flexibility, making them ideal for complex construction projects where space, safety and performance is critical.
wall height maximum
tie back straps
typical post spacing
EKHO’s Engineered Anchored Wall solutions deliver proven performance in challenging conditions—from confined urban sites to large-scale earth retention projects.
The post and panel design allows unique flexibility in sequencing of wall construction with other site activities. If required, the retaining wall can be built prior to backfill and compaction.
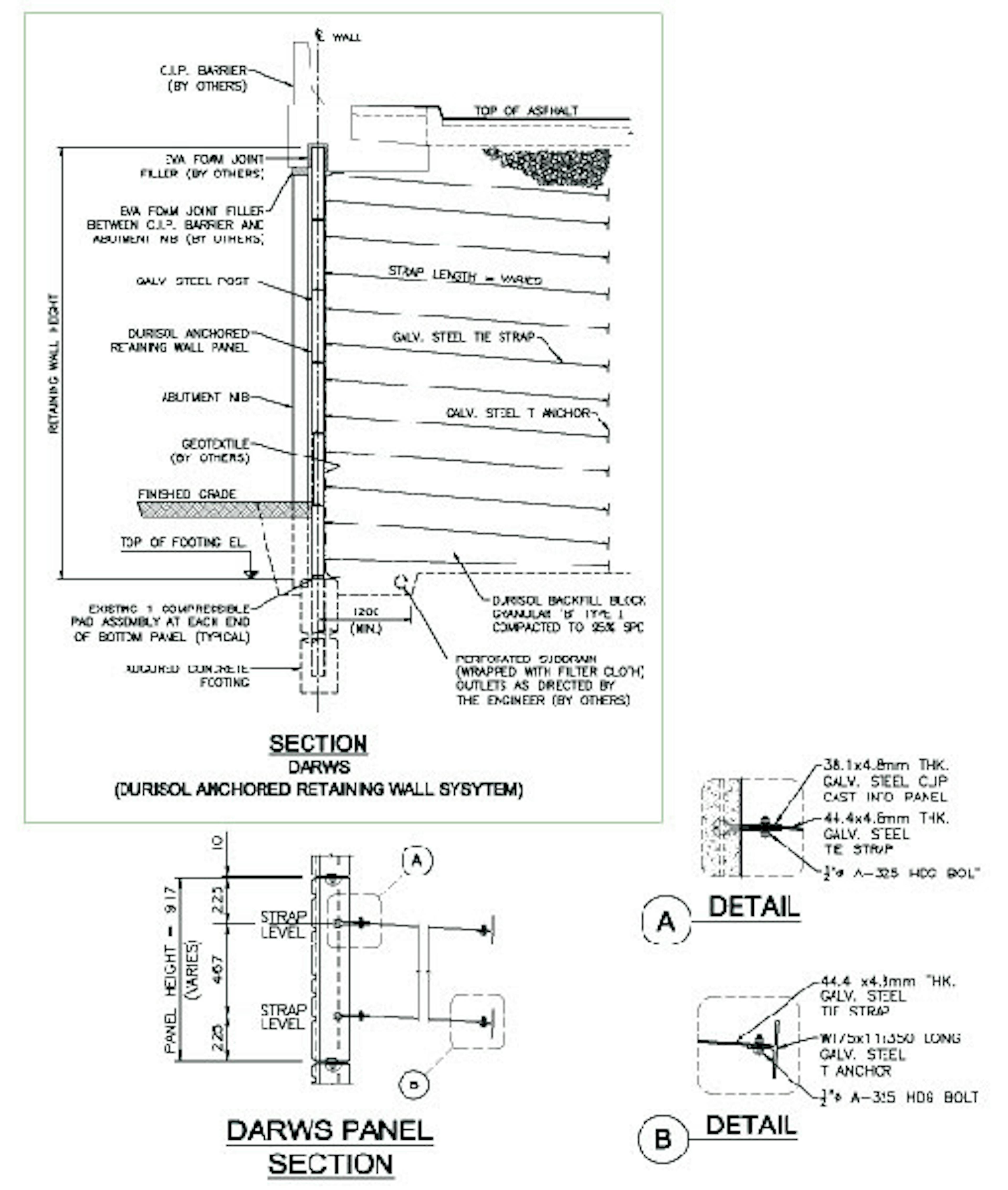
Retaining loads handled by metal straps which are attached to clips cast into the back face of the retaining wall panels.
The Anchored wall solution can be integrated with the Narrow Footprint Retaining Wall system where space behind the wall is restricted.
Engineered in-house and include the steel post sections, depth and diameter of footings, length/quantity of steel tie-back straps.
Pre-engineered components reduce on-site construction time.
Compact footprint and modular design allow installation in confined or active sites.
Engineered solutions reduce the need for extensive excavation or heavy equipment.
Can be adjusted on-site to accommodate changing project conditions or unforeseen obstacles.

Connect With Us